|
MODEL
MEGA ARM
INSTALLATION AND SERVICE MANUAL
IMPORTANT INSTALLATION INSTRUCTIONS - DO NOT DISCARD
(IMPORTANT: READ AND UNDERSTAND WARRANTY page FIRST) THIS MANUAL COVERS THE NEW
INTERLOCK MEMORY FEATURES
WARNING! FAILURE TO CHILDREN SHOULD NEVER OR BE ALLOWED TO PLAY NEAR
OR OPERATE AUTOMATIC GATES OBSERVES ARE OPERATING PROCEDURE TRAIN YOUR CUSTOMER PROPERLY OR
INSTALL
PROPER WARNING SIGNAGE MAY RESULT IN SERIOUS INJURY
DC SOLUTIONS, INC
4750 SW 36 STREET BLDG-X;
FT LAUDERDALE, FLORIDA 33314
TECH SUPPORT: (954)4270988
MEGA-ARM, MEGA-PULSE, MEGA-SENSE ARE TRADEMARKS OF DC SOLUTIONS, INC.
TABLE OF CONTENTS
INTRODUCTION
UNIT OVERVIEW
INSTALLATION PROCEDURE
CONCRETE PAD
WIRING AND HOOKUP
120 VOLTS AC
INPUT COMMANDS 1-8
ACCESSORY AND RELAY CONNECTIONS
BATTERY INSTALLATION
MASTER / SLAVE WIRING
REVERSING ARM DIRECTION
TIMERS AND MODE SELECTIONS S1 & S2
MODE SELECTIONS - S1
MODE SELECTIONS - S2
CLOSE TIMER SELECTION
ADJUSTMENTS
INSTANT REVERSE DEVICE (IRD)
GATE ARM LEVELING
TROUBLE SHOOTING AND MAINTENANCE PROCEDURES
BATTERY CHECK OUT
GATE NOT OPERATING
GENERAL SERVICE
SHEAR PIN REPLACEMENT
SAMPLE CONFIGURATIONS
FREE EXIT OPERATION
ENTRY WITH ACCESS CONTROL DEVICE
DUAL DIRECTION
INTERLOCK MEGA ARMS OR WITH OTHER OPERATORS
CONTROL BOARD LAYOUT
INPUT LOCATIONS
MEGA-ARM PARTS LIST
PART NUMBERS AND DESCRIPTIONS
PART SHIPPED
INTRODUCTION
UNIT OVERVIEW
The DC SOLUTIONS model MEGA-ARM barrier style parking gate operator is unique in the
industry Setting the MEGA-ARM apart are many features that make it the front runner in its class.
With standard features like:
-
Built in battery backup inherent 24 VDC backup power with
regulated 24VDC for accessories
-
High torque 24 volt Permanent Magnet DC motor
-
Full service controller with eight inputs and LED indicators for
loops, card reader, radius, etc.
-
Continuous duty operation for all applications
-
Reversible arm direction for right or left handed operation
-
Instant Reverse Device (IRD) monitor senses obstructions going
open and close
-
Automatic open of~ gate arm when power is lost if desired (With
15 sec delay selection)
-
Raise gate input memory will memorize multiple
vehicles ideal for barcode scanners & AVI
-
Ability to have arm STOP in close travel if
tail-gating is sensed at close loop
-
Break away mounting design for the 12 foot
by tubular aluminum arm
-
All rust proof aluminum construction with powder coat baked on
enamel (In white or gray)
-
Molded Polyethylene UV stabilized cover never needs wax or paint
(In white or gray)
-
Direct drive gear reducer eliminates many parts that might
otherwise fail
-
Microprocessor (RISC). based electronics with watch dog reset
timer
-
State of the art MOSFET motor drive technology, NO contactors or
relays
-
Dynamic motor braking to preserve arm positioning
-
Soft start and stop. in open and close travel motions
-
No limit switches to fail-uses magnetic (Hall Effect) sensors to
monitor arm position
-
Maximum Run Timer for motor (M~ with
anti-tamper protection in closing direction.
-
Each unit configurable as master or slave operator.
-
Safe 24 VDC low voltage motor and control wiring
-
Open architecture PCB with space for
OVERDRlVE CPU for future
expanded options
-
LED diagnostic center for easy onsite trouble shooting
-
Closing timer adjustable from 1~3 seconds with on 10ff
selection.
-
Tranzorb diodes on all inputs for protection against
transient voltage spikes.
-
Capable of being powered by 120VAC 220 VAC or Solar power,
standard
-
Duplex outlet gives convenient supply of 120 VAC for
transformers and 120 VAC accessories.
-
5 year perforation warranty on cover and chassis with 1 year on
electronics and mechanism
INSTALLATION PROCEDURE
CONCRETE PAD
The concrete pad for operator mounting should be approximately
24"x24"x24" in order to provide adequate weight and structure to insure proper and stable
operation. Pad should be 6" above finished grade or even with top of curb if one is present
(NOTE: PAD SHOULD ALWAYS GO BELOW FROST LINE IN REGIONS WHERE GROUND WILL
FREEZE)
ANCHORS
Proper anchors for fastening operator to pad will be a 1/2"x6"
wedge anchor patterned to match the mounting base of the unit. They should be installed with
approximately 1.25" showing above concrete surface in order to allow for the
1/2" thick base plate as well as washers for leveling.
NOTE 1: MAXIMUM AMBIENT TEMPERATURE FOR INSTALLATION, 104 FAHRENHEIT
NOTE 2: FOR AUTOMOTIVE USE ONLY, NO MOTORCYCLES, BICYCLES OR PEDESTRIANS
NOTE 3: HEATER OPTION MUST BE USED IF TEMP IS (15F) OR BELOW TEMPERATURES
CONDUITS
Conduits should be restricted to fit the 3.5"x3.5" opening in pedestal
base. Location on pad should be centered and spaced approximately
6" from edge of pad on drive way side (in order to get the most reach out
of arm). Conduits to be included should be 120 VAC main power low voltage control
wiring and one or two extra for loop sensor leads. Conduit size should be limited to
.5" when possible to reduce crowding if more than four are needed All conduits must
be UL approved.
WIRING AND HOOKUP (Only by a qualified electrician/installer!)
120 VAC
Be sure your main power (l2Ovac) is OFF before attempting hookup The 120 volts AC supply
should be terminated to the wires in top of the tube at the top
of the chassis. Connect the 120 VAC to BLACK wire, Neutral to the WHITE wire and Ground the
GREEN wire. Warning: Do not connect any 120 VAC wires directly to the terminal
strips on the electronic control board. Only UL approved 14 AWG ( or larger) 600 volt insulated wire
should be used. A separate UL approved 10 amp circuit breaker should be used for each
MEGA-ARM operator. BATTERIES MUST BE INSTALLED AFTER 12O VAC POWER IS TURNED ON.
See BATTERY at page 3 and 120 VAC wiring on page 4.
INPUT COMMANDS
Control wire connections at low voltage terminal strip will be at the top of the electronic control board.
Make connections to the appropriate points for the desired operation. Wires should be UL approved
600 volt rated and at least 18 awg. They are to be routed through the
upper grommet in chassis to avoid chafing. All external control devices must have normally
open dry contacts. CONNECT ANY DEVICE WHICH WOULD DELIVER ANY VOLTAGE OF
ANY KIND TO THESE TERMINALS. Terminals 9,10,11 12 are the commons (0 VDC) used to activate the
following inputs.
1, 2, 3 OPEN - These inputs will trigger gate open when pulsed or
hold gate open with maintained contact. When released gate will close if closing timer
is on or if close input is given.
4, AUXILIARY OPEN - Same as 1,2 and 3 with S2 witch 6 off.
With S2
switch 6 On, this input will memorize multiple vehicles and not allow gate to close until the
final vehicle in memory crosses the close loop. Use with laser scanners .or card readers and
transmitters with timed anti-pass back.
5, SAFETY - This input is generally not used with the
MEGA-ARM. If used its function is to make gate reverse and go back to the open position if it was closing.
Input is disabled when gate is closed.
6, CLOSE - When used with a vehicle detector, it is recommended that the presence contacts
(N.O. & C.) be used for the close input. This input will close gate after input is applied and then removed.
It will stop the open cycle and reverse gate to close. (Example: Car crosses over close loop before
arm reaches full open position gate will reverse and close). (Note: The close input also acts as a
safety-stop in that if gate is closing and a tailgater is sensed at the close input, the gate WILL STOP
its closing motion and not continue to close until the close input is removed or gate is re-opened).
INPUT COMMAND (Continued)
7, BACK-AWAY (FREE EXIT INPUT) This input is used as a free exit input
to open gate. When input is active gate will open and close immediately once input is
removed If gate is opening and this input is removed the gate will reverse and close. If this input
is followed by another input (open safety or close) gate will continue with its new command.
(EXAMPLE: Car pulls up to exit loop gate
opens; car "backs-away" from exit loop and gate closes).
8, SHAD - INTERLOCK (REDEFINED INPUT!!!) Used to monitor an
auxiliary open limit switch of another operator in the same lane. Interlock with memory feature
(v5.20 or higher) see page 13.
9, 10, 11, 12 - COMMON - These are the commons (0 VDC) to be used to
activate above inputs..
Note: Above inputs are tied to LED indicators to show input command activity.
ACCESSORY AND RELAY CONNECTIONS
These terminals will provide battery backed power to 24 VDC
devices and are located at the bottom of the electronic control board at terminals 1 and 2.
Terminal 1 is 24 VDC (+) and number 2 is 0 VDC (-). Peripheral CLASS 2 low voltage devices that require 24 VDS
power maybe connected here (500 ma. maximum). EXAMPLE: Vehicle detector radio
receiver.
RELAY OUTPUT K1 - (OPTION) With S1-8 off this relay energizes when
the. gate arm is in all positions except closed With 51-8 on it will pulse when the open
limit sensor is reached to activate a swing gate slide gate or other device.
BATTERY INSTALLATION
HOOKING UP BATTERY LEADS - ALWAYS HOOKUP AND TURN ON AC POWER
BEFORE INSTALLING BATTERIES. After turning on AC power install two new fully charged 12 volt DC
batteries on shelf next to motor. Connect red lead from operator to the positive (RED +) terminal of
one battery and black lead from the operator to the (BLACK-) terminal of the OTHER battery.
Place the supplied jumper between the remaining terminals of each
battery if one is not already in place. See diagram. (USE YUASA BRAND PN#NP7-12)
WARNING-DO NOT RUN OPERATOR WITHOUT INSTALLING THE BATTERIES

Failure to install
batteries correctly WILL cause damage and WILL not be covered by warranty.
120 VAC POWER CONNECTION
MASTER / SLAVE WIRING
Master-slave wire hook up.
STEP 1- In a master/slave configuration either unit can be the master.
Choose one unit to be the master and then direct all control wiring to it (also install vehicle detector and receivers in it)
STEP 2 - At the MASTER any input (at J5) with control (detectors receivers keypads timers
etc.) wires to it must also be run to the same terminals of the slave Along with these control wires both
operators MUST share a common ground connection from chassis to chassis (or from common to common,
i.e.
master gate J5 terminal #12 to slave gate J5 terminal #12)
EXAMPLE: If only open and close are used at master then three wires will run between gates.
STEP 3 - If it is required that if one gate senses an obstruction the other reverses also
then 3 additional wires must be run between the master J3 and slave J3 as shown below
these connections are for transmitting IRD (obstruction signals) between both units This will allow the master or
slave to inform the other that a closing obstruction has occurred and for it to also reverse and open ALWAYS
set the DIP switches on S2, 1-8 the same on both units.
 |
IRD OBSTRUCTION SIGNAL CONNECTIONS
THE CONNECTIONS TO THE LEFT MUST BE DONE IN ORDER FOR GATE
IRD'S TO WORK CORRECTLY. TERMINAL 1 OF MASTER MUST GO TO TERMINAL 4 OF SLAVE AND TERMINAL 1 OF SLAVE MUST
GO TO TERMINAL 4 OF MASTER TERMINAL 2 OF MASTER WILL GO TO TERMINAL 2 OF SLAVE
|
TIMERS AND MODE SELECTIONS - (S1 and S2)
FULL SPEED RUN TIMER - SWITCH PACK S1 (1-5) DO NOT CHANGE SETTINGS
The full speed run timer must be left at the factory setting of all
"OFF" when used with the MEGA-ARM barrier operator. With all switches off the default is approximately 1 5 seconds.
MODE SELECTIONS - SWITCH PACK S1 (6-8)
SWITCH - 6. ON -Will fire relay if gate is pushed UP from closed limit, used with clutch
option
SWITCH - 7. USED TO ENABLE ARM TO WORK IN REVERSE DIRECTION, SEE page 11.
SWITCH - 8. Off will make K1 relay activate during open cycle( use with buzzers, counters,
etc..) On will pulse K1 relay when OPEN LIMIT (OLS) is reached (activates a swing or slide gate its
lane).
CLOSE TIMER - SWITCH PACK S2 (1-5)
On the MEGA-ARM the switches 1~5 on 52 are for the closing time delay to select the period
of time that the gate stays open after the obstruction sensor has revered and re-opened the
arm or if the S2-7 timer to close is turned on. The default will keep the gate up for 4 seconds to
allow the vehicle to be moved from the gate arm path. Changing settings 1 5 will increase or
decrease this hold open time. The default of 1,2,4,5 OFF AND 3 ON will provide a 4 second close time
delay.
MODE SELECTIONS - SWITCH PACK S2 (68)
SWITCH - 6, INPUT MEMORY Activates multiple vehicle memory at aux input terminal #4 on
J5.
SWITCH - 7 AUTO CLOSE TIMER. Default is OFF NOT RECOMMENDED FOR MEGA-ARM.
SWITCH - 8 AUTO OPEN ON POWER FAILURE. When switch number 8 is in the ON position, the
operator will automatically open the gate approximately 15 seconds after the loss of power.
Once power is restored the operator will resume normal operation after tile first car passes
closing loop.
ADJUSTMENTS
INSTANT REVERSE DEVICE (IRD)
The reverse device is an internal circuit that continuously monitors the motors current for increased
draw. Turning the IRD1 right (CW more sensitive), or left (CCW less sensitive) in small increments
will allow sensitivity adjustments (IF ARM DOES NOT REVERSE, DO NOT CONTINUE TO FORCE).
The obstruction that you apply should STOP the arm. Adjust sensitivity so that consistent reversal
occurs. If the gate stops while opening then the IRD is TOO
sensitive. Some slight adjustment either way may be needed in order that the gate only reverses when
obstructed. If gate is obstructed while closing, gate will reverse to the open position, time out (using
the time delay set at S-2 switches 1-5) and then close. If gate is opening when obstructed, gate
will stop its open travel, then will time out and close using the same delay set at
S-2. If 6-2 switch number 8 is off (you have programmed the unit to NOT AUTO RAISE when power fails) then recheck your
adjustments with AC power off to be sure proper operation will be maintained.
NOTE-INSTANT REVERSE DEVICE (IRD) SHOULD BE TESTED
MONTHLY TO INSURE
PROPER OPERATION. IF ADJUSTMENTS ARE REQUIRED, REFER TO ABOVE
PARAGRAPH. ADJUSTMENTS TO BE DONE BY QUALIFIED SERVICE PERSONS ONLY.
GATE ARM INSTALLATION AND LEVELING
Install arm in gate arm bracket by lining up holes in arm with the slotted holes in bracket. Insert the
bolts through the arm and through the bracket. Next install the
flat washers then the nylon nuts. (It is recommended the only nylon nuts be used to attach arms). The
magnetic limit cam is pre-adjusted for near proper arm travel, however if leveling of the arm is
required this can be done through adjustment to the magnetic cam arm. Note that during these
adjustments the arm only travels
approximately 55 to 89 degrees for its full motion. Always adjust for a level arm in the HORIZONTAL
POSITION. There is a small set screw in the side of the cam arm which can be loosened to allow the
cam arm magnet to reach the close limit sensor (located on back of controller, H2) earlier or later in
its travel. Continue to open and close the gate while adjusting until a satisfactory horizontal stopping
point can be maintained. Afterwards re-secure set screw in cam arm. (Note: In some cases additional
adjustments may be required after the belt wears in). When
stopping in the open position, the arm will stop just before the full vertical position.
NOTICE: TO PREVENT ENTRAPMENT, ALLOW FOR TWO (2) FEET MINIMUM
CLEARANCE PAST END OF ARM WHEN IN DOWN POSITION.
SHEAR PIN REPLACEMENT
If gate arm is vandalized and the tapered pin in the output shaft has been sheared, it must be
replaced correctly and with the right pin type. Replacement must be done by always punching out the
pin (or pieces) from the small end only. If drilling is required, DO NOT DAMAGE THE SHAFT, use a
drill bit smaller than the small hole size of the pin. (Correct pin is a 2" pin with a number
6 taper only).
NEVER USE A BOLT AS A TEMPORARY FIX, THIS WILL DAMAGE THE SHAFT AND COLLAR
1) Use S-3 to rotate bracket to up position
2) Turn off AG power and disconnect batteries
3) Remove gate arm bracket and pieces in collar
4) Drive out pin pieces with hammer and punch (Solid sharp blows are better than light ones)
5) Reinstall gate arm bracket
6) Lightly oil the new pin then insert into collar small end first.
7) Fully seat pin in shaft by taping on large end
8) Reinstall the arm if required
9) Turn on AC power and connect batteries
10) Turn off S-3 to put gate into operation
TROUBLE SHOOTING AND MAINTENANCE PROCEDURES
WARNING - DISCONNECT BATTERIES AND AC POWER BEFORE SERVICING ANY MECHANICAL OR
MOVING COMPONENTS!!
BATTERY CHECKOUT - When the batteries become
weak the gate
will begin to run noticeably slower (Note: Batteries should only be
checked when you are sure they have had adequate time to
fully charge). Turn off the AC power and run gate for 5 to
10 cycles while observing low battery
indicator LED D12. If LED 12 comes ON, batteries are too weak
to function properly.
If LED 12 does not light, then voltage should be checked as they still
maybe near failure.
Correct voltage is approximately 24~5VDC (Note:. If LED D12 does light,
gate will open
to conserve batteries in this test or in a real power loss, even
if mode switch a on 32 is off).
Return of AC power will clear low battery
indicator. Correct charge voltage is 27.5 VDC with batteries not connected (adjustment is at
RGS).
GATE WILL NOT CLOSE 1) Check for any active inputs, AC power loss, AC power
switch is off or weak batteries.
2) Check that batteries are connected properly
3) Is switch S-3 in on position (this is. manual open switch)
4) Check for S-2 switch number 8 is in on position and if AC power is lost, see LED D14.
5) Check LED D12, if lit and AC power is off, then batteries needs to be
charged or replaced.
GATE WILL NOT OPEN 1) Check for AC power
loss at D14 (check AC power switch) and that batteries are fully charged.
2) Check fuses and if inputs are wired correctly, test S-3 manual open switch.
GATE DEAD, NO OPERATION
1) Check LED D14 for AC power indication and check AC power switch is on.
2) Check LED D11 for Heart Beat pulses, if none and D14 (AC) & D5 (Brake) are on, then gate
has repeatedly sensed obstructions. Clear obstruction then clear with next new input.
3) IRD (D2) LED is flashing, MRT has expired. H1, H2 (Hall sensors) and clearance to magnet
on cam. MUST be check for intermittent activation, failure to rectify may result in malfunctions
(MRT is Maximum Run Timer that disables the gate if the magnet does not reach
H1 or H2).
Reset the AC and battery power to clear this once you have rectified the problem.
FUSE(S) ARE BLOWN, F-3 (10 AMP AC) AND / OR F-4 (15 AMP DC) 1) Check for shorts in wiring.
If F-3 AC fuse is blown then batteries may also be weak or dead. "Warning
- For Continued Protection Against Fire,
Replace Only With The Same Type And Rating Of Fuse" GATES
CLOSES THEN REVERSES 1) See page 6 for RD adjustments also check for obstacles in gate travel, trees,
etc....
2) Charge voltage to batteries too low, adjust at R63. With batteries
disconnected set to 27.5.
IRD OBSTRUCTION SIGNAL TO OTHER GATE NOT WORKING CORRECTLY 1) Remove connector at
J13, obstruct arm, LED D13 should go off for a few seconds. This
indicates signal was transmitted. Be sure gates share a common ground (See master slave
pg 4).
GENERAL SERVICE 1) Belt loose or needs replacement, adjust with 4 bolts that support motor
to allow 1/4 inch play.
2) Charge voltage for batteries should be 27.5 VDC with batteries disconnected (set at R63).
3) Replace batteries with Yuasa, pn# NP7-12, 7 amp hour l2vdc sealed lead
/ acid type.
SAMPLE CONFIGURATIONS
 |
GATE WILL OPEN WHEN SENSED BY
EXIT LOOP AND THEN CLOSE ONCE
THE CLOSE LOOP IS CLEARED IF THE
VEHICLE PULLS UP TO THE EXIT LOOP
AND THEN BACKS AWAY IT WILL CLOSE
(SPACE BETWEEN LOOPS WILL BE 4 To 10)
TERMINAL # 7 IS BACK AWAY (FREE EXIT)
TERMINAL # 6 IS CLOSE INPUT
|
 |
GATE WILL OPEN WHEN ACTIVATED BY AN
ACCESS CONTROL DEVICE WHEN VEHICLE
PASSES AND CLEARS CLOSE LOOP
GATE WILL CLOSE
NOTE IF A SECOND VEHICLE TAILGATES
AND IS SENSED AT THE CLOSE LOOP GATE
WILL STOP ITS CLOSING MOTION UNTIL
LOOP IS CLEARED AGAIN
TERMINAL # 6 IS CLOSE INPUT
TERMINAL II 123 ARE OPEN INPUTS
|
 |
DUAL DIRECTION IS A
COMBINATION OF
BOTH OF THE ABOVE CONFIGURATIONS
TO PROVIDE THE ABILITY FOR TRAFFIC
TO ENTER OR EXIT IN THE SAME LANE
(SPACE BETWEEN LOOPS WILL BE 4 TO 10FT)
|
RECOMMENDATION 1: If vehicle detectors are used to open or close the gate use of the
presence contacts are recommended. Using the pulse contacts will REDUCE the gates safe operation.
RECOMMENDATION 2: If closing timer is to be used use ONLY on a dedicated free
exit.
RECOMMENDATION 3: Close loop must be centered under gate arm.
CONTROL BOARD LAYOUT
BOARD REV 2.0 (2/98)
ACCESSORY POWER IS 24VDC REGULATED RATED AT 500 ma [1/2 AMP]
(POWER AT ACCESSORY+ AND AT RELAY PIN4+ IS FUSED AT P1 WITH A 1 AMP FAST-BLO FUSE)
NOTE J5 #8 IS NOW THE INTERLOCK WITH MEMORY INPUT (SEE page 13)
INDICATES THAT THIS FEATURE IS FOR USE WITH THE MEGA SLIDE-UL OPERATOR
D11 HEART BEAT SHOWS THAT PROCESSOR AND PROGRAM ROUTINE. ARE RUNNING PROPERLY
D12 BATTERY STATUS SEE DIAGNOSTIC PROCEDURES
D14 AC POWER INDICATOR SHOWS THAT AC POWER IS PRESENT
S3 MANUAL OPEN TO ALLOW GATE TO BE OPENED OR CLOSED DURING SERVICE OF UNIT
Fl-1 AMP FAST BLO FUSE (5mrn x 20mm) MAXIMUM CONTINUOUS DRAW IS 1/2 AMP (UL FUSE ONLY)
P310 AMP ATO TYPE FUSE FOR 24VAC INPUT POWER (U.L. LISTED FUSE ONLY)
P4 15 AMP ATO TYPE FUSE FOR 24VDC BATTERY INPUT POWER (U.L. LISTED FUSE ONLY)
MEGA-ARM PARTS LIST
| ITEM |
PN |
DESCRIPTION |
| 1 |
MA-001 |
CONTROLLER-CPU |
| 2 |
MA-002 |
REMOVABLE CONNECTOR |
| 3 |
MA-003 |
DC MOTOR - 24 VDC |
| 4 |
MA-004 |
12 VDC 7AH BATTERY -2 REQUIRED (NOT INCLUDED) |
| 5 |
MA-005 |
GEAR REDUCER 60:1 |
| 6 |
MA-006 |
ALUMINUM CHASSIS |
| 7 |
MA-007 |
DRIVE BELT |
| 8 |
MA-008 |
REDUCER PULLEY |
| 9 |
MA-009 |
MOTOR PULLEY |
| 10 |
MK-010 |
GATE ARM BRACKET |
| 11 |
MK-011 |
MAGNET |
| 12 |
MA-012 |
CAM ARM |
| 13 |
MA-013 |
SHEAR PIN |
| 14 |
MA-014 |
BOLT & NUT (4) MOTOR |
| 15 |
MA-015 |
TRANSFORMER (110 /220 VAC-24 VAC |
| 16 |
MA-016 |
MAIN POWER CONNECTION BOX |
| 17 |
MA-017 |
BOLT & NUT (4) REDUCER |
| 18 |
MA-018 |
GROMMET (2) |
| 19 |
MA-019 |
117 VAC ON-OFF SWITCH |
| * |
MA-020 |
UNIT COVER |
| * |
MA-021 |
NYLON ARM NUTS (2) |
| * |
MA-022 |
ARM BOLTS (2) |
| * |
MA-023 |
GATE ARM - 12FT |
| 20 |
MA-036 |
COLLAR |
| 21 |
MA-037 |
NYLON WASHER |
(*) PARTS NOT SHOWN
PARTS SHIPPED
| 1 |
MEGA-ARM OPERATOR |
|
| 1 |
CONTROLLER CPU |
|
| 1 |
UNIT COVER |
|
| 1 |
INSTALLATION AND SERVICE MANUAL |
|
| 2 |
ARM BOLTS WITH WASHERS |
|
| 10 |
NYLON NUTS |
|
UNIT ALSO REQUIRES (2) SEALED 12 VDC 7 AMP HR BATTERIES- NOT INCLUDED
REVERSING ARM DIRECTION
THE MEGA ARM ALLOWS FOR THE "HANDING" OR REVERSING OF THE ARMS
DIRECTION OF MOVEMENT IN RELATION TO THE UNITS NORMAL OPERATION. THIS ALLOWS FOR MOUNTING
IN TIGHT PLACES OR WHEN IT IS DESIRED TO HAVE THE ARM, WHEN ACROSS THE DRIVE
WAY, TO BE IN FRONT OF THE UNIT OR BEHIND THE UNIT WHEN VIEWED FROM THE TRAFFIC FLOW DIRECTION.
WARNING - POWER MUST BE OFF AND NO ARM INSTALLED BEFORE
MAKING THESE CHANGES
STEP 1)
ONLY UNITS WITH SOFTWARE VERSIONS v4.14 OR HIGHER HAVE THIS CAPABILITY.
BEFORE POWER UP SWITCH BANK S1 SWITCH #7 MUST BE ON.
STEP 2)
NEXT THE MOTOR WIRES ON THE CONTROL BOARD MUST BE REVERSED. AT J4 ON THE BOTTOM
OF PCB, THE LAST 2 WIRES ON THE RIGHT (J4-7, J4-8) NORMALLY ARE
BLUE THEN ORANGE THEY MUST BE REVERSE TO BE (J4-7) ORANGE THEN (J4-8) BLUE.
STEP 3)
AFTER COMPLETING THE STEPS ABOVE, THE CAM ARM WHICH ADJUSTS THE LIMITING POINTS OF
THE ARMS TRAVEL MUST BE TURNED 90 DEGREES TO THE LEFT WHEN VIEWED WHILE STANDING
IN FRONT OF THE CONTROL BOARD (CAM ARM NOW POINTS IN THE DIRECTION OF THE ARM AND
IS LEVEL WITH MOUNT BRACKET, NOTE THE SMALL LIMIT SENSORS ON THE BACK OF THE PCB).
STEP 4)
NOW CHECK TO MAKE SURE THAT S1 #71S ON, MOTOR. WIRES ARE REVERSED, THE CAM IS
ADJUSTED AND THAT THE MANUAL OPEN CLOSE SWITCH (S3) IS SET TO
CLOSE. NEXT TURN ON THE AC POWER AND CONNECT THE BATTERIES. NOW RUN THE GATE OPEN AND
CLOSE WITH THE S3 MANUAL SWITCH MAKING SURE THAT THE MECHANISM TRAVELS IN THE PROPER 90 DEGREES
DESIRED. ONCE YOU ARE TOTALLY SURE YOU HAVE THE CORRECT OPERATION YOU CAN INSTALL THE ARM.
INSTALLATION NOTE: ARMS LONGER THAN 12 FEET MUST USE THE PROPER COUNTER WEIGHT


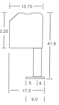
ADDENDUM 1
UNIT DIMENSIONS (MEASUREMENTS ARE IN INCHES)
INTERLOCK WITH MEMORY FEATURE
INTERLOCK WITH OTHER OPERATORS: (REQUIRES THE K1 RELAY OPTION)
VERSIONS 5.20 OR GREATER NOW HAVE THE ABILITY TO ALLOW THE MEGA-ARM TO MONITOR FOR THE
FULL OPEN POSITION OF A SLIDE, SWING, VERTICAL PIVOT, ROLL LIP OR OVERHEAD OPERATOR AS
WELL AS THE DOWN POSITION OF MOTORIZED TRAFFIC TEETH (MTC-31) AND RAISE THE ARM ONCE FULLY
OPEN.
This new feature will allow a logical interface between the MEGA ARM barrier gate and a
swing, slide, etc... gate operator (or MTC-31). All that is required is 4 wires between the Mega Arm
barrier gate and the other operator. It will be necessary to have one set of dedicated/isolated dry
contacts-{C. & N.C.} COMMON & NORMALLY CLOSED be available at the other operators OPEN LIMIT
SWITCH. Most units will require that this EXTRA limit switch be added to their open limit
switch assembly.
OPERATION:. A one second pulse from access control device to the
MEGA ARM will
energize its K1 relay sending an open signal to the other operator
causing it to open, however, the MEGA ARM's boom will not raise yet.
When the other operator reaches its full open limit switch, this will
open the COMMON & NORMALLY CLOSED contact on the EXTRA open
limit switch. This will allow the original signal from your access
control device (that was stored in memory) to now raise
the gate arm. As long as the other operators in the full open position,
any additional open pulse sent will in turn energize the
MEGA ARM's K1 relay to send another open signal to the other operator
as well as cause the arm braise again if it has closed via a car
crossing the MEGA ARM's close loop.
WIRING: Run 2 wires from the other operator isolated
common & normally closed contacts of
its open limit switch to the MEGA ARM J5#8 and one of the commons J5,
#9-12. Next run 2 wires from the MEGA
ARM's K1 relay (common & normally open) to the other operators
common and open input. (WARNING: max of 30 VOLTS
@ .5 AMPS THROUGH RELAY). J5 #8 was the unused SHADOW LOOP input on the
MEGA ARM. Note: A separate open device (24 hour timer, toggle
switch) can be run to the other operator to control it without raising
the gate arm. Tampering with the other operators
safety loops, safety edges and reverse sensors WILL NOT cause the arm
to raise if one
tripped the arm will only raise if an intended open signal was sent to
the MEGA ARM.
NOTE: FOR MOTORIZED TEETH, VERTICAL PIVOT OR OVERHEAD OPERATOR, LEAVE
S1-6, S1-8 OFF (THIS WILL KEEP THE K1 RELAY LATCHED UNTIL THE ARM REACHES THE DOWN POSITION. THIS
WILL KEEP THE OTHER GATE OPERATOR LOCKED OPEN OR TEETH LOCKED DOWN UNTIL THE ARM CLOSES COMPLETELY). NOTE: IN
THIS MODE IF THE ARM SENSES AN IMPACT, THE K1 RELAY WILL STAY ENERGIZED HOLDING OPEN. (OR TEETH DOWN) THE
OTHER OPERATOR UNTIL THE ARM TIMES OUT AND CLOSES.
INTER-LOCK TWO MEGA ARMS WITH "MEMORY":
.
REQUIRES THE K1 RELAY OPTION
NOTE: (5.20 or greater) can be used when you have two entry gates that you want to
INTER-LOCK with each other. This is when you can only have ONE gate raised at a time (bottle neck or gates at a cross street).
In this case, which ever one raises first will get first priority, while if the other gets an open signal, it will be
HELD IN MEMORY then raise once the first gate closes. This will work
if either gate has a telephone entry unit or access device (AVI, prox , etc...). Connect
the K1 relay C & N.O. of each gate to the SHADOW LOOP J5 #8 input & common of the other (Leave
S1-6 & 8 OFF to allow relay to stay
latched).
(You must read understand and agree with alt items in the limited warranty)
LIMITED WARRANTY
DC SOLUTIONS, INC Warrants the MEGA ARM to be free of defects in workmanship and
materials for a period of 1 year for electronics and mechanical components and 5 years on the cover and
chassis for perforation due to corrosion. Warranty will begin from the date of purchase
DC Solutions Inc reserves the right of final determination as to the existence and causes
of any defect or failure. Any part or parts found to be defective and are
returned to DC Solutions within the
warranty period shall at our option be repaired or replaced free of charge
F.O.B. the factory.
The warranty Will not apply the following circumstances which are considered beyond our
control. Mis-use, vandalism, accident, neglect, unauthorized repairs or
modifications, acts of God (lightning floods, insect damage, etc...), power surges, units subjected to
corrosive environments, incorrect installation or application, the batteries or incorrect
battery installation operation without or failure to use correct battery type, damage to arm bracket and
/ or gear reducer due to use of incorrect arm.
The warranty set forth above is entirely exclusive and no other warranty whether written or
oral, is expressed or implied DC Solutions, Inc specifically disclaims any and all implied warranties,
merchantability or fitness for a particular purpose. It is the purchasers sole and exclusive responsibility to
determine whether or not the
equipment will be suitable for a particular purpose. In no event shall DC Solutions, inc be
held liable for direct, indirect, incidental, special, consequential damages or loss of profits whether
based on contract, tort, or any other legal theory during the course of the warranty or at any time there after. The
installer and or end user agree to assume all responsibility for all liability in use of this
product, releasing
DC SOLUTIONS, INC of all liability..
WARNING!
MEGA ARM NOT FOR USE WITH MOTOR CYCLES, BICYCLES OR PEDESTRIANS YOU MUST PROVIDE APPROPRIATE SIGNAGE BEFORE ACTIVATING THE UNIT
NEVER ALLOW CHILDREN TO PLAY NEAR OR OPERATE AUTOMATIC GATES
IN ORDER TO INSTALL AND USE THE MEGA ARM, YOU MUST UNDERSTAND AND BE IN
FULL UNCONDITIONAL AGREEMENT WITH ALL. STIPULATIONS OUTLINED ABOVE. IF
YOU ARE NOT IN
FULL AGREEMENT, DO NOT PUT UNIT INTO OPERATION. IF OPERATOR IS PUT INTO OPERATION
THIS WILL BE CONFIRMATION THAT YOU ARE IN FULL UNCONDITIONAL AGREEMENT WITH THE ALL
OF THE ABOVE STIPULATIONS.
Materials, components, features and specifications are subject to change without notice.
|